Trilocale in vendita

Casalecchio Di Reno, Via della Libertà - Ceretolo
€ 295.000
3 locali 3 locali
84 Mq 84 Mq
1 bagno 1 bagno

Trilocale in vendita

Casalecchio Di Reno, Via della Libertà - Ceretolo

Descrizione annuncio

Ceretolo: In zona pedecollinare, immerso nel verde e a pochi passi da tutti i servizi, in piccola palazzina di sole quattro unità di recente costruzione e completamente riqualificate a livello energetico e sismico.

Classe A con cura nel dettaglio nella scelta dei materiali che prevedono finiture di estremo pregio all'avanguardia e funzionali all'insegna del confort.


Proponiamo in vendita luminoso e panoramico trilocale al piano terra con ingresso indipendente, viene venduto completamente ristrutturato.

Ideale per nuclei famigliari numerosi e soluzioni genitori – figli, in quanto possibilità di acquisto di altre unità immobiliari, eventualmente è possibile l'acquisto anche dell'intera palazzina ( 4 appartamenti).


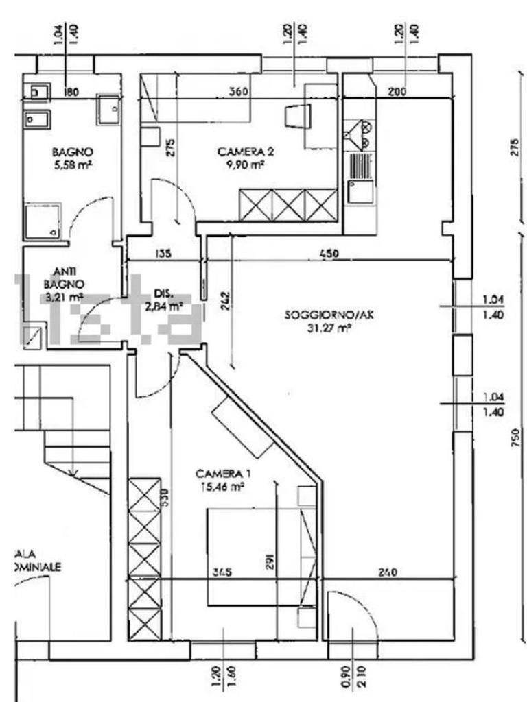
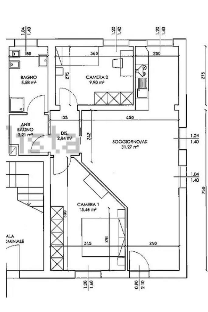
Internamente composto da un ampio soggiorno con cucina a vista, due camere di cui una matrimoniale e un bagno finestrato.

Ottime finiture interne. Sulla palazzina sono stati appena ultimati i lavori del super bonus 110% comprendenti; il cappotto termico, l'impianto fotovoltaico, il sistema di condizionamento gli infissi esterni ed il tetto.

Possibilità di acquisto posto auto coperto.

Riscaldamento autonomo e basse spese condominiali.

Per maggiori informazioni contattateci!

Immobile trattato in collaborazione con Progetti immobiliari

Mostra tutto

Nelle vicinanze

Trasporto pubblico Trasporto pubblico
Casalecchio Garibaldi
Casalecchio Garibaldi
1,3 Km
Casalecchio di Reno
Casalecchio di Reno
1,5 Km
Ceretolo
Ceretolo
330 m
Ceretolo Chiesa
Ceretolo Chiesa
370 m
Casalecchio Ceretolo
Casalecchio Ceretolo
530 m
Ricariche auto elettriche Ricariche auto elettriche
EnelX Fast IKEA Bologna
1,2 Km
Schiavina S.R.L. | EnelX
1,3 Km
Scuole Scuole
ITC Gaetano Salvemini
890 m
Scuola Elementare Carducci
1,4 Km
Scuola Elementare Bruno Ciari
1,5 Km
Scuole
1,5 Km
Liceo Scientifico Leonardo da Vinci
1,5 Km
Farmacia Farmacia
Ceretolo
320 m
Bertuzzi
1,1 Km
Parafarmacia Esselunga
1,2 Km
Calzavecchio
1,2 Km
Farmacia
1,5 Km
Ospedali Ospedali
Casa della Salute
1,3 Km
Villa Chiara
2,3 Km
Supermercati Supermercati
Alimentari
350 m
Esselunga
1,1 Km
Carrefour
1,3 Km
Coop
1,6 Km
DPiù
1,6 Km
Negozi Negozi
Naturasì
970 m
Comi' Come'
1,1 Km
Nym
1,1 Km
Just Glam
1,1 Km
Sisley
1,1 Km
Bar Bar
Carosello Sexy Disco
300 m
Bar Brio
350 m
Street 2020
730 m
Lo Sceicco Bianco
1,1 Km
Lounge Cuvè
1,1 Km
Ristoranti Ristoranti
Ristorante Pizzeria Taormina
300 m
Osaka
1,1 Km
Old Wild West
1,1 Km
Trattoria dal Mât
1,1 Km
Basilicum
1,1 Km
Mostra tutto

Caratteristiche

Rif.:
61194391
Piano:
Terra di 1
Totale piani:
1
Camere da letto:
2
Arredamento:
Assente
Condizionamento:
Autonomo
Mostra tutto
Prezzo Prezzo
€ 295.000
Rata mutuo Rata mutuo
€ 1.395 / mese
Spese annue Spese annue
€ 0
Proponi il tuo prezzoProponi il tuo prezzo

Classe Energetica

A1
A1
A1
A1
A1
A1
A1
A1
A1
EP globale non rinnovabile:
65.28 kW h/m² anno
EP invernale del fabbricato:
EP estiva del fabbricato:
Anno di costruzione:
2008
Riscaldamento:
Autonomo
Tipo impianto:
Ad aria
Tipo alimentazione:
Aria

Ti interessa visionare l'immobile?

Fissa un appuntamento  Fissa un appuntamento

Richiedi informazioni

Clicca su Leggi per aprire l'informativa
* Questi campi sono obbligatori

Calcola il tuo mutuo

Semplice e senza impegno
Anticipo

( % )
Mutuo

( % )

pochi semplici passi

inserisci i tuoi dati
Questionario completato
Grazie per aver richiesto un appuntamento senza impegno con un nostro Consulente del Credito e Assicurativo.

Hai inserito correttamente tutti i dati necessari e a breve riceverai una e-mail con un link da convalidare per inviare i tuoi dati.
Affiliato
Immobiliare Casalecchio Srl
Via Carducci, 2 40033 Casalecchio Di Reno (BO)

Il nostro staff


  • Erica Fantini
    Affiliata

  • Franco Ballotta
    Affiliato

  • Massimo Belloni
    Collaboratore

  • Elisa Zambelli
    Coordinatrice
Via Carducci, 2 40033 Casalecchio Di Reno (BO)
Zona: Casalecchio di Reno
Mostra su mappa
Orari: Lun. Ven. 9.00-13.00 / 15.00-20.00 Sab. 09.00-15.00
Affiliato
Immobiliare Casalecchio Srl
Via Carducci, 2 40033 Casalecchio Di Reno (BO)

2026 Tecnocasa Franchising S.p.A. - P. IVA 08365160152 - Via Monte Bianco 60/A 20089 Rozzano (MI). Ogni agenzia ha un proprio titolare ed è autonoma. Privacy policy | Policy utilizzo | Cookie policy